Design collections

A curated collection of modular living spaces.

Our collections blend clean visual aesthetics with strong everyday functionality.

1 bedroom Opalite exterior perspective
Opalite Collection

1 Bedroom Opalite

Designed for simplicity, this layout offers a compact premium design suited for a private guest use, rental flexibility or a backyard retreat.

Bedrooms1
Bathrooms1
Living1
Flat roof profile Premium facade Efficient plan
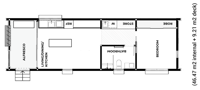
1 bedroom Opalite floor plan Enquire about this design
2 bedroom Opalite exterior perspective
Opalite Collection

2 Bedroom Opalite

A highly versatile design that balances comfort, privacy and broad market appeal. Ideal for multigenerational living, guest use or a stronger rental proposition.

Bedrooms2
Bathrooms1
Living1
Clean facade lines Light-filled core Balanced footprint
2 bedroom Opalite floor plan Enquire about this design
3 bedroom Opalite exterior perspective
Opalite Collection

3 Bedroom Opalite

The broadest family-ready option offering a larger internal layout while retaining premium external character of the collection.

Bedrooms3
Bathrooms2
Living1+
Expanded layout Family flexibility Premium exterior
3 bedroom Opalite floor plan Enquire about this design
1 bedroom Lumina exterior perspective
Lumina Collection

1 Bedroom Lumina

A modern modular option with a warmer profile and a confident visual presence. Designed for buyers who want compact living without compromising on finish.

Bedrooms1
Bathrooms1
Living1
Modular format Strong street appeal Warm profile 1 bedroom Novanest floor plan
Enquire about this design
2 bedroom Novanest exterior perspective
Lumina Collection

2 Bedroom Lumina

A flexible two-bedroom layout created for clients wanting extra accommodation, stronger usability and a modern modular home with visual confidence.

Bedrooms2
Bathrooms1
Living1
Modular range Two-bedroom layout Premium feel 2 bedroom Novanest floor plan
Enquire about this design
Need a tailored recommendation?

Tell us your goals and we’ll point you in the right design direction.